Redefining & reimagining the future of


We believe that every design should begin with a creative holistic vision.
Vision governs projects and is the driver for success.

When problem-solving or rethinking tired typologies, Dror starts by questioning everything. Once a direction is decided, we build the right team of collaborators to address the challenge, improve experiences and create value.

Share with us your dreams, challenges and new ventures: info@studiodror.com

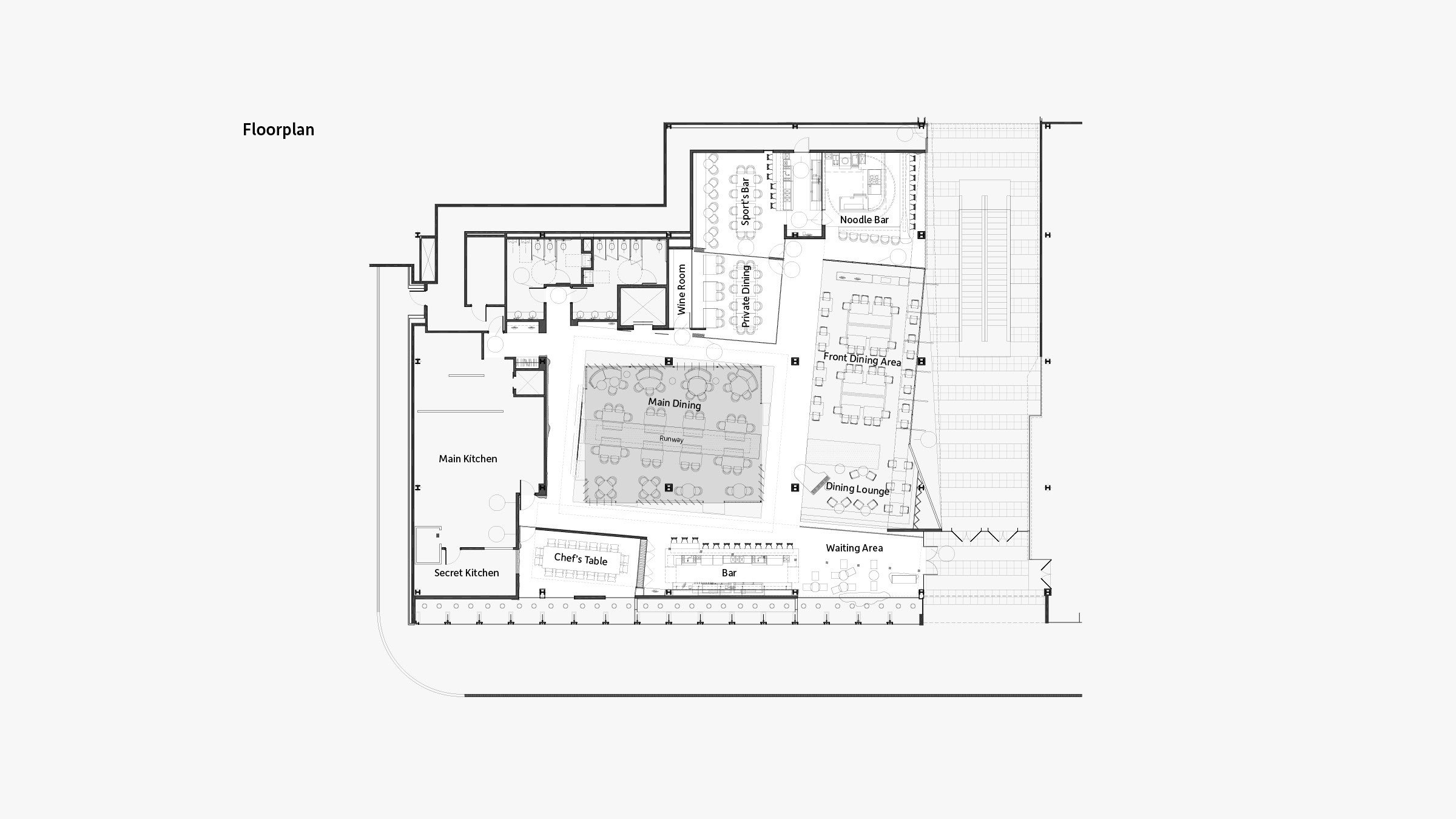
for Orange County Restaurant

The design for this modern restaurant, serving Asian cuisine, was based on a simple twist in the floor plan, allowing for an inner square to highlight the difference between a minimal interior and the richness of traditional craftsmanship. A glass-cased zen garden cuts through the space, serving as either a communal dining bench or a dramatic runway.


Use arrow keys to navigate through projects